1. Предыстория.
В теме "одноместный джет" есть новозеландские ролики , про небольшую лодочку с силовой установкой от "гидрика".
Один мой знакомый...сварил себе...но не похожа "чуток", корпус у него...сделан по "своим собственным понятиям"...хотя мы с ним долго обсуждали его " лодочные тараканы", дал ему почитать книжку "Справочник по малотоннажному судостроению" .Мотор -Кавасаки 750 куб 70 лс.
На днях будет сбрасываться, как только чуток потеплеет. Фотки - сам покажет или я покажу (с его позволения конечно).
2. Основная часть.
Изучаю буржуинский опыт, отмечаю БОЛЬШОЙ интерес форумных пользователей к "суперлодке Крюгера" ....ну и имея небольшой собственный опыт постройки лодок..... "есть такая мысль - и я её думаю"
Замутить проект с Нуля - то есть сделать крой, сварить корпус под доступныые моторы - а именно от "гидриков" с доработками, для "богатыХ" - доступен WEBER-750MPE "сотка" на выхлопе.
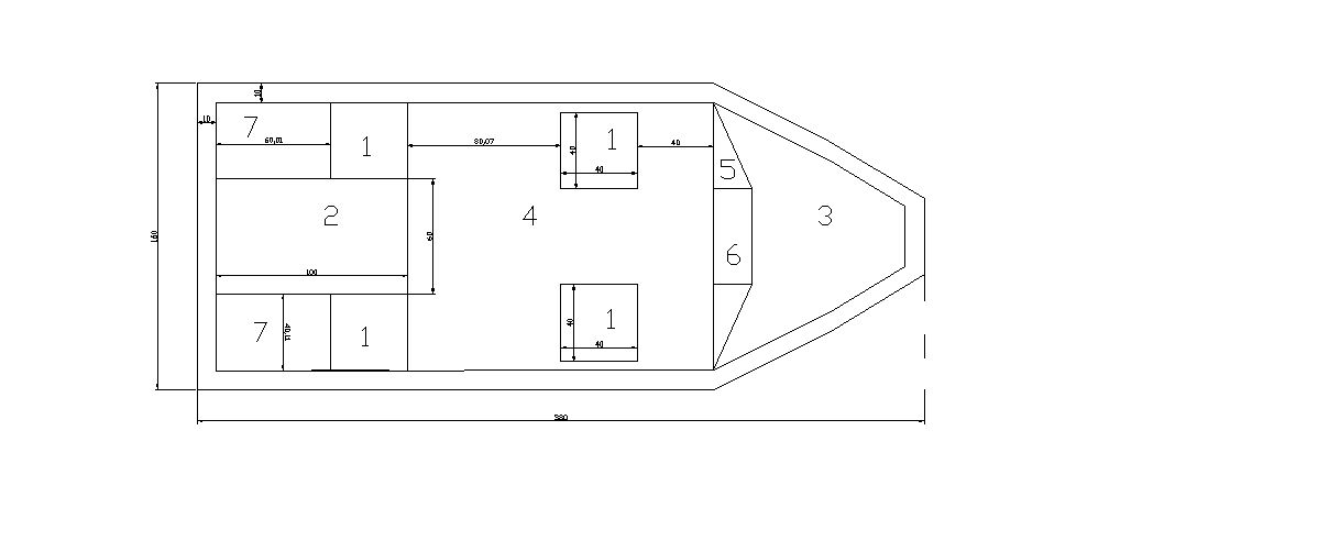
Размер лодки - завязан на длину стандартного листа 4000мм то есть где-то около 3700-3800мм ширина наибольшая около 1600мм (чтобы рядом посадить двух чел, нормального телосложения).Лист - 4 мм днище, 3 мм борт, усиление днища как у Зеландцев - доп опция, еще 3-4 мм на болтах и "сикафлекс". Хотя вот - приклеил плиту на немецкий бытовой герметик из " OBI"...снять не смог....ни зубилом, ни нагревом с зубилом..никак.
В этот размер впихнётся - два нормальных кресла, небольшой багажник,дуга безопасности -на некоторых лодках стоит, на нее светотехника, спининг удобно крепится, ну наверное не надо обьяснять что это лодка выходного дня?
( НО без ограничения по слипам, удобная доставка суперДжипами типа Джимник-Нива-КалинаМалина в несудоходные места)
-это может быть только "крой на диске" ( сколько по деньгам не знаю - компьютерщик пока не назвал цену)
- крой металла в развёртках или уже гнутый (тоже не понятно пока, сколько возьмет плазморезчики и гибщики)
- корпус под достройку
ну итд.
Если есть КОНСТРУКТИВНЫЕ СООБРАЖЕНИЯ - интересно послушать.
( обычную лабуду строчить не надо , типа - "Мне такая нах. не нужна - негде спать втроём" или " " У нас все на "мётлах с улитками " рассекают и все щастливы"



